Katalog nájemních bytů
O projektu
Galerie
Kontakt
+420 608 119 796
info@triveze.cz
Domluvit schůzku
Menu
Můžeme pracovat s cookies,
ať víme, jak to na našem webu žije?
Nastavení
Cookies
Zpracování osobních údajů
PDF
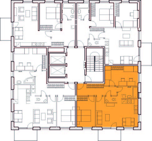
V1-08
23.03.2020 0:00
3+kk
73.9
5000
JV
30000
dostupny
2.6
Zpět na seznam
Komentáře (0)
Vložit komentář
Načítám...
Login